1. Tổng quan dự án phòng khám nha khoa Hoàn Mỹ
- Tên dự án: Phòng khám nha khoa Hoàn Mỹ
- Chủ đầu tư: Mr Khoa
- Địa điểm: 798 Đ. 2/4, Vĩnh Phước, Nha Trang, Khánh Hòa (Gần Tháp Bà)
- Đơn vị thi công: Công ty CP Đầu tư và Xây dựng Hưng Lâm
- Quy mô: 5 tầng
2. Dấu ấn thiết kế công trình Phòng khám Nha khoa Hoàn Mỹ tại Nha Trang
Thiết kế kiến trúc khác biệt - phong cách nhiệt đới
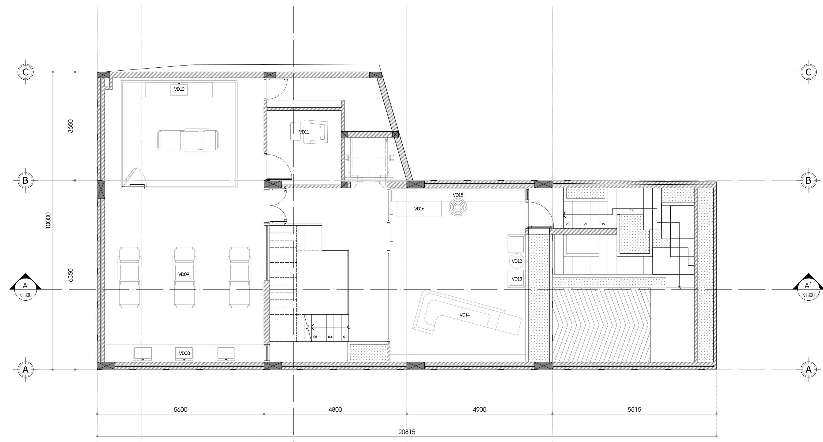
Tầng hầm đỗ xe rộng rãi và kho chứa vật dụng y tế
Phòng khám còn có tầng hầm đỗ xe rộng rãi, đảm bảo sự thuận tiện và an toàn cho khách hàng khi đến sử dụng dịch vụ.
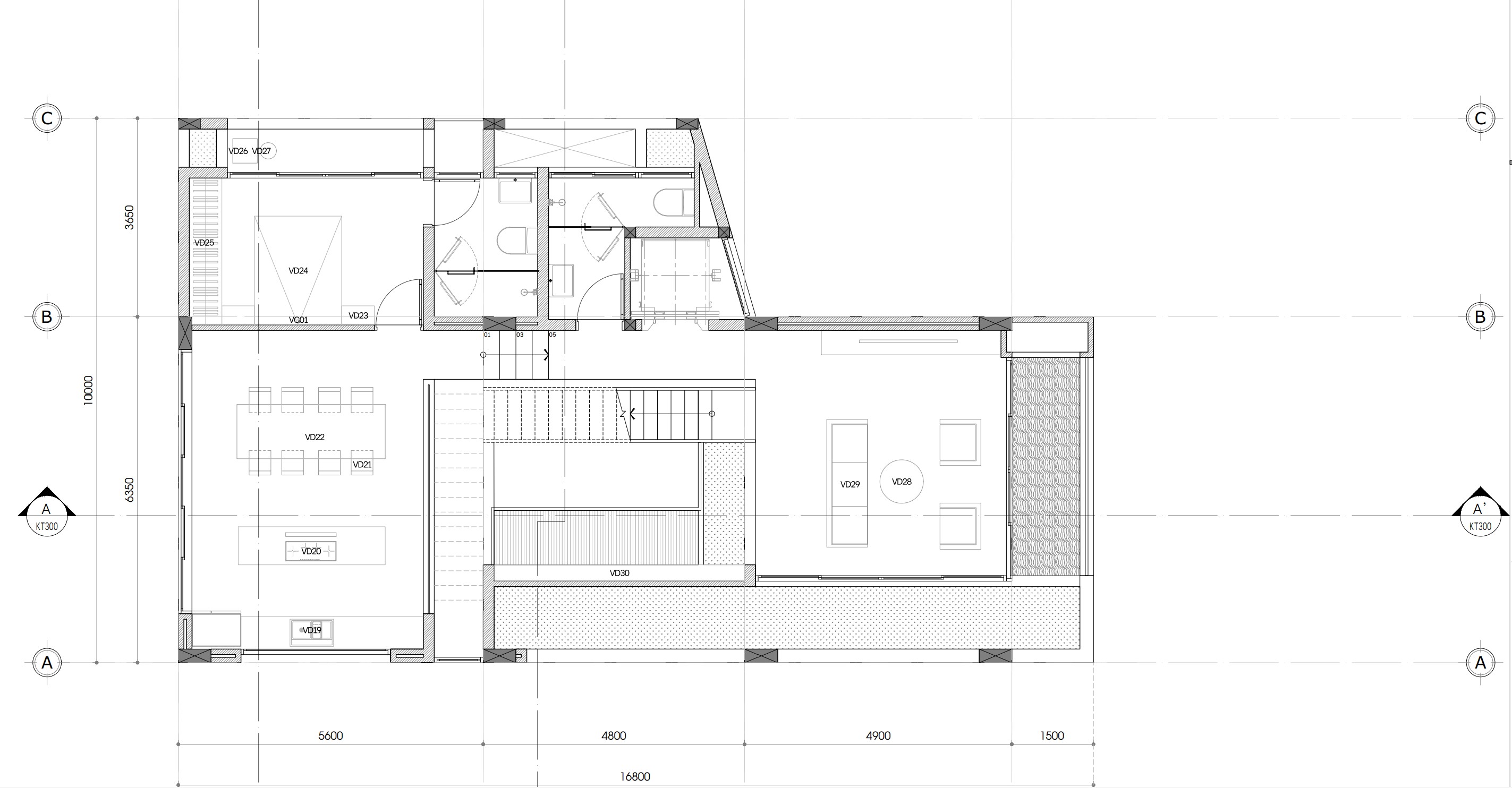
Tính tiện nghi và trải nghiệm khách hàng - Khu vực chờ rộng rãi, nhiều cây xanh và ánh sáng tự nhiên
Phòng khám nha khoa Hoàn Mỹ không chỉ chú trọng vào chất lượng y tế mà còn đặc biệt quan tâm đến trải nghiệm khách hàng. Không gian tiếp đón và phòng chờ được thiết kế với đầy đủ tiện nghi, từ ghế ngồi êm ái, hệ thống giải trí cho đến Wi-Fi miễn phí, giúp khách hàng cảm thấy thư giãn trong thời gian chờ đợi.
Công nghệ thi công tiên tiến
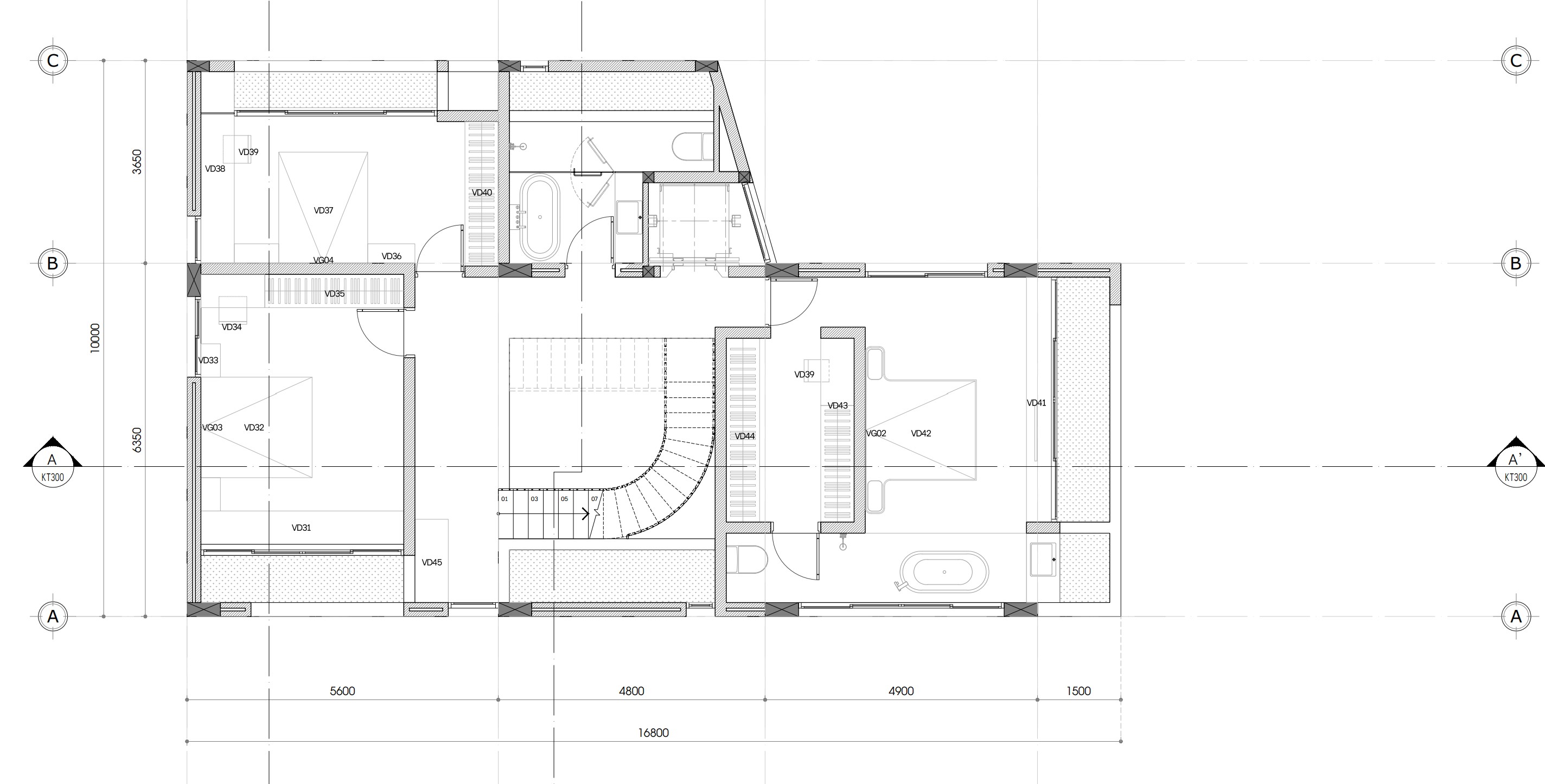
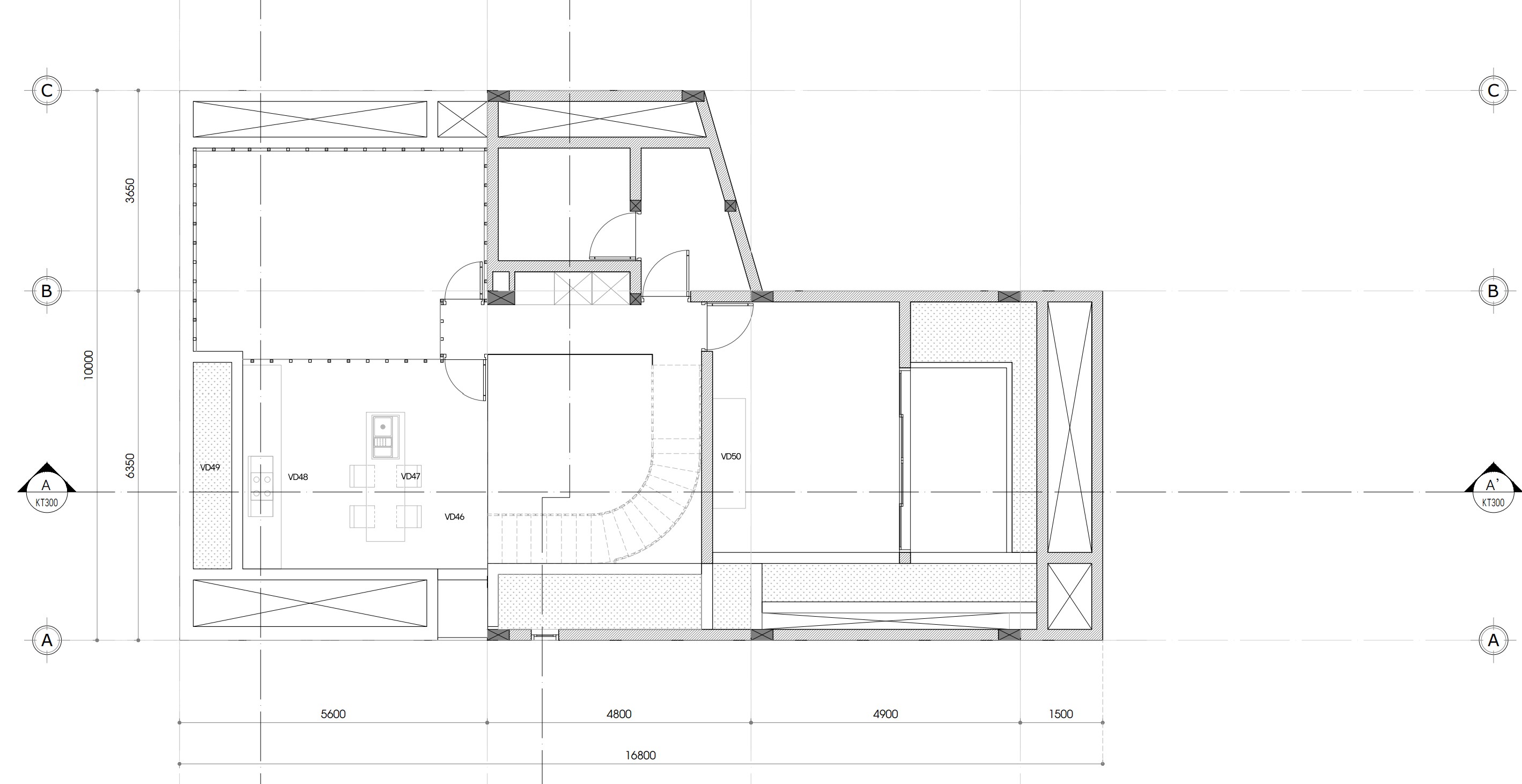
Thiết kế không gian sống và sinh hoạt cho gia đình
3. Hình ảnh thực tế thi công phòng khám nha khoa Hoàn Mỹ
4. Xây dựng Hưng Lâm - Đơn vị thiết kế và thi công trọn gói uy tín tại Nha Trang
Với kinh nghiệm thực hiện hàng trăm công trình nhà phố, biệt thự và dự án đầu tư tại Khánh Hòa, Xây dựng Hưng Lâm được biết đến là đơn vị xây dựng tại Nha Trang có năng lực thi công chuẩn, làm việc chỉn chu và tận tâm với từng khách hàng.
Điều tạo nên khác biệt của Hưng Lâm không chỉ là bản vẽ đẹp, mà là cách chúng tôi đồng hành cùng khách hàng từ những ngày đầu tiên:
-
Hỗ trợ lên ý tưởng phù hợp với nhu cầu và ngân sách.
-
Đưa ra giải pháp kỹ thuật – vật liệu – phong thủy cân đối.
-
Thi công đúng tiến độ, đảm bảo chất lượng và tính thẩm mỹ.
-
Minh bạch chi phí, giúp khách hàng an tâm trong suốt quá trình.
4.1. Pháp lý minh bạch – Quy trình đạt chuẩn ISO 9001:2015
-
Công ty CP Đầu tư & Xây dựng Hưng Lâm được cấp phép hoạt động chính thức (MST 4201835704 – Sở KH&ĐT Khánh Hòa cấp ngày 21/3/2019, cập nhật lần 4 ngày 04/10/2025).
-
Áp dụng chứng chỉ ISO 9001:2015 trong toàn bộ quy trình thiết kế – thi công – nghiệm thu, đảm bảo mọi giai đoạn đều có hồ sơ kiểm định rõ ràng.
-
Mỗi công trình đều được lưu trữ nhật ký thi công, biên bản nghiệm thu, bản vẽ hoàn công – minh bạch tuyệt đối.
Xem thêm: Hồ sơ công ty Xây dựng Hưng Lâm
4.2. Năng lực thực tế – Hơn 115 công trình bàn giao đúng tiến độ
-
Thi công tại các khu đô thị lớn: VCN Phước Long, Mỹ Gia, An Bình Tân, và nhiều công trình nhà ở công chức tại Khánh Hòa.
-
95% khách hàng hài lòng về chất lượng, tiến độ và dịch vụ hậu mãi.
-
Từng công trình là một cam kết được thực hiện đến cùng – đúng tiến độ, đúng bản vẽ, đúng chi phí.
4.3. Đội ngũ kỹ sư & nhân sự chuẩn nghề
-
Tập hợp kỹ sư, kiến trúc sư có chứng chỉ hành nghề, kinh nghiệm thực chiến từ 5–15 năm.
-
Hưng Lâm chú trọng văn hóa kỷ luật và tinh thần trách nhiệm, đảm bảo chất lượng trong từng công đoạn.
4.4. Cam kết “Minh bạch – Đúng tiến độ – Bảo hành dài hạn”
- Hợp đồng trọn gói, rõ ràng, không phát sinh.
- Cập nhật tiến độ hàng tuần qua Zalo, hình ảnh thực tế và báo cáo kỹ thuật, giúp chủ đầu tư yên tâm dù bận công tác xa.
- Bảo hành kết cấu 5–10 năm, chống thấm 2 năm.
5. Liên hệ tư vấn miễn phí xây nhà trọn gói tại Nha Trang
Nếu bạn đang tìm một công ty xây dựng tại Nha Trang đáng tin cậy – hiểu rõ nhu cầu của khách hàng công chức và luôn giữ chữ Tín trong từng viên gạch, hãy để Xây dựng Hưng Lâm đồng hành cùng bạn.
📍 Văn phòng: 11A Đặng Nguyên Cẩn, phường Bắc Nha Trang, Khánh Hòa
🌐 Website: xaynhacongchuc.com
📞 Hotline tư vấn: 0916 892 423 (anh Mến)
📞 Hotline CSKH: 0901 912 808 (Linh)








![[THÔNG BÁO] LỊCH NGHỈ TẾT DƯƠNG LỊCH 2026 ✨](/assets/blog/2025_12/thong-bao-hoat-dong-tet-nam-moi-2026.png)


